樓主: JustinWang
收起左側

[求助] 尋求劇院規劃建議

[複製連結]

發表於 2010-9-22 12:25:08 | 顯示全部樓層
多位專家先進參與  非常歡迎正好借機會向諸位討教新世代音響建構
遠離音響幾近三十年 發現如此默生得要急起直追     歡迎大家光臨賜教
回覆

使用道具 舉報


發表於 2010-9-23 08:53:42 | 顯示全部樓層
我理解力比較差所以比較難想像,這樣是平時可以遮擋穿堂煞,

然後開冷氣的時候可以屏隔廚房嗎?可是不知道大概是從哪邊擋到哪邊?

還有就是室內還有要裝設 "全熱交換器" (女友有氣喘. 所以忍痛也要裝.)

所以 ...
JustinWang 發表於 2010-9-19 18:13

我家也有裝設 "全熱交換器"
型號也一樣,確實很佔空間,
除主機定位處要傷腦筋外,進出大管更須好好規劃
順便請協助問問看黑白的濾網更換時要去何處買?
另其報價也很亂
從26000~45000都有
依您的細心,應可詢問到好價位
回覆

使用道具 舉報


發表於 2010-9-23 09:00:06 | 顯示全部樓層
68# Dustin  
文化不同
別怪小弟啦!
我們老港"收山"代表退休
"出山"=重出江湖
@@真是代誌大條
Justin要和對方磨個三兩天
是免不了
再次謝謝
也再次抱歉 ...
sam 發表於 2010-9-21 00:45

"出山"=入土為安  (台灣話直翻譯)
"下山"一詞較佳
回覆

使用道具 舉報


 樓主| 發表於 2010-9-23 17:45:44 | 顯示全部樓層
我家也有裝設 "全熱交換器"
型號也一樣,確實很佔空間,
除主機定位處要傷腦筋外,進出大管更須好好規劃
順便請協助問問看黑白的濾網更換時要去何處買?
另其報價也很亂
從26000~45000都有
依您的細心,應可詢問到好價 ...
dean222 發表於 2010-9-23 08:53


空調部分已經有找到一個覺得不錯也好配合的廠商
價錢可能沒有很好,可是我相信服務跟品質應該不錯
然後全熱這部份也是給他們做
另外有加裝一個他們自己設計的過濾裝置.
希望會增加原廠濾心的壽命..
也比較經濟一點
底下是圖
01.


02.


03.


04.
回覆

使用道具 舉報


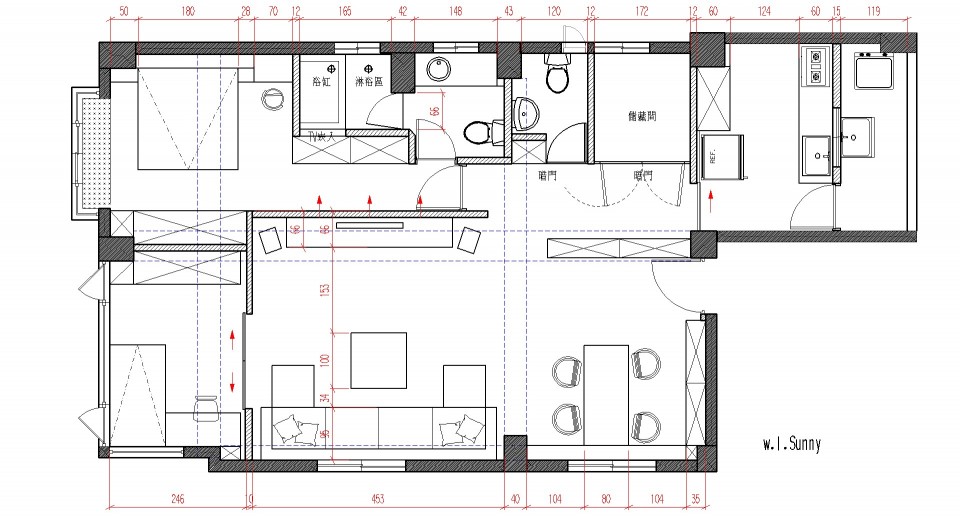
 樓主| 發表於 2010-9-23 20:47:51 | 顯示全部樓層
9/23更新進度
新的圖面以及報價出來了
又可以開始討論囉!

新圖面
回覆

使用道具 舉報


發表於 2010-9-23 21:36:57 | 顯示全部樓層
9/23更新進度
新的圖面以及報價出來了
又可以開始討論囉!

新圖面
Justin你好:
傳來報價單已收到今明兩天趕快仔細研究一下,明晚與 你 & sam一起討論
回覆

使用道具 舉報


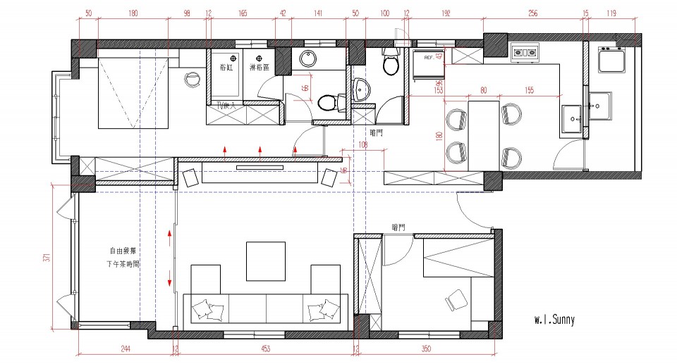
 樓主| 發表於 2010-9-25 17:18:06 | 顯示全部樓層
9/25 進度更新

24號晚上再度前往Dustin家商討
25號上午時十點Dustin與Sam前來丈量正確尺寸
回覆

使用道具 舉報


發表於 2010-9-25 18:13:14 | 顯示全部樓層
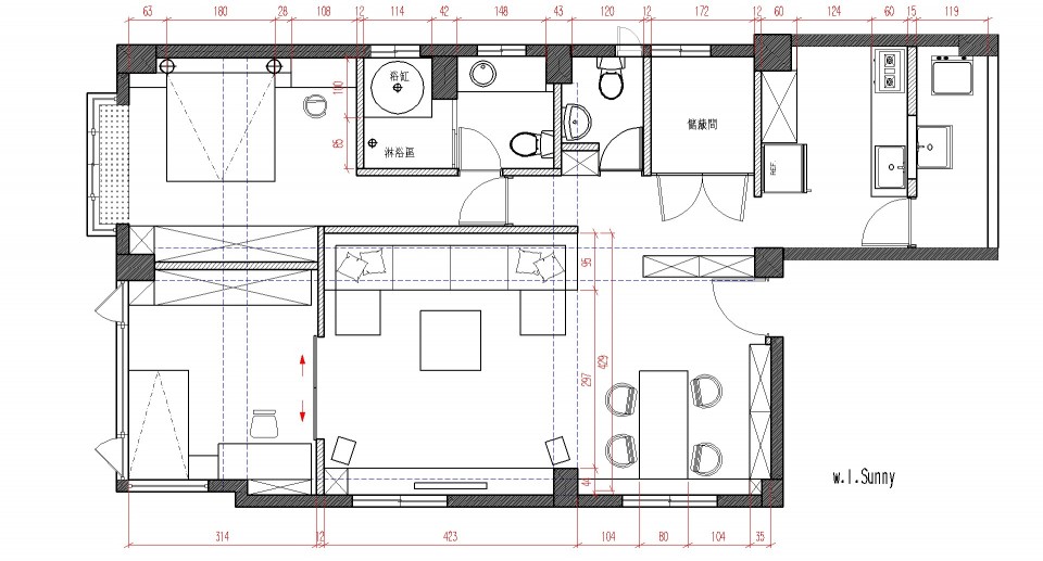
個人覺得就新的平面圖來講,主牆面應與小孩房衣櫃外沿沏齊,這樣主臥房間門才不會被切開!其實客廳不算小,可是電視櫃面寬就顯的有一點小家子氣,若有圖檔又不會很急的話.小弟可以出一份平面圖讓你參考!
回覆

使用道具 舉報


 樓主| 發表於 2010-9-25 19:08:27 | 顯示全部樓層
個人覺得就新的平面圖來講,主牆面應與小孩房衣櫃外沿沏齊,這樣主臥房間門才不會被切開!其實客廳不算小,可是電視櫃面寬就顯的有一點小家子氣,若有圖檔又不會很急的話.小弟可以出一份平面圖讓你參考! ...
cc00992002 發表於 2010-9-25 18:13


歡迎阿~~

多點idea 總是好的 :p
回覆

使用道具 舉報


 樓主| 發表於 2010-9-26 14:41:37 | 顯示全部樓層
9/26 進度更新

整理需求表 如下

01. 浴室要有浴缸、乾溼分離、免治馬桶座的電源、浴室乾燥暖風機、浴櫃(或是可以收納東西的地方 吹風機、刮鬍刀、電動牙刷...,etc)、相關用品的電源
02. 冷氣希望以壁掛為主但為了美觀客廳可以使用吊隱
03. 小孩房目前以放置衣櫃為主,在沒有小孩前可以當作多功能房,壁面是否有容易清潔的方案?(以後小孩說不定會不會塗鴉弄髒,那面用烤漆玻璃是否安全?)
04. 廚房為了方便清洗考慮用烤漆玻璃,廚房那扇窗是否要封? 廚房排油煙機出風口需要更改
05. 小陽台未來會做隔柵把那個角補平,內部是否建議要做窗戶? 洗衣機以及洗衣台位置.. 以及是否順手? 熱水洗衣的可行性?
06. 電器櫃的容納量? 烤箱、電鍋、微波爐、咖啡機、飲水機...,etc 是否容易取用? 碗盤筷櫃的位置?
07. 貓的安置位置? 貓砂盆(味道的考量..?)
08. 大型電器的收納位置(儲物室、櫃?) 風扇、吸塵器、掃把、掃地機器人..,etc )
09. 換季衣物、換季棉被的收納位置..,etc)
10. 客浴的空間問題(如果改善客浴跟餐廳的不協調性、窗戶卡邊的問題、以及要塞一個淋浴)
11. 客廳是否需要吧檯?
12. 收納空間的問題,目前規劃看起來櫃子不是很多,以後的收納性?
13. 有角的邊希望改成圓弧(安全考量)
14. 緊急照明? 是否有辦法藏在天花上面?
15. 需安裝全熱交換器,需考量4"風管的動線以及不穿樑為原則
16. 整間房子的插座數需求量大,且須順手
17. 希望一切以便利及舒適為主要考量
18. 踢腳板?
19. 主臥室需要有電視,但又希望不要因為電視減少太多收納..
20. 放置鑰匙、手機充電、小雜物的地方(大門附近?)
21. 網路孔、電視孔、電話孔安置的位置..?
22. 客廳設備的安放位置? 以及投影、喇叭的走線、擺設
23. 所有線路(電力、弱電)要以後還有抽換的功能..

再幫我想想吧 :P
回覆

使用道具 舉報


 樓主| 發表於 2010-9-26 16:21:57 | 顯示全部樓層
24. 攝影器材放置的位置(防潮箱.)
25. 客廳是否有需要塞一個小冰箱?
26. 客廳的假設有吧檯的話 建議有小洗台嗎?
回覆

使用道具 舉報


 樓主| 發表於 2010-9-30 11:07:17 | 顯示全部樓層
9/29 更新

討論新圖面.. 討論廁所擺設...

wow ... 乾溼分離好難
回覆

使用道具 舉報


發表於 2010-9-30 17:38:20 | 顯示全部樓層
衛浴安排在多重條件限制下 昨晚於sam家討論至11點多真不好意思又沒有結論 早上一番腦力激蕩終於完成,先貼上衛浴部份其餘完稿中。
scan00022.jpg
回覆

使用道具 舉報


 樓主| 發表於 2010-10-3 10:23:45 | 顯示全部樓層
95# cc00992002

動線好像有一點奇怪..

從主臥室要去另外一間房間..要繞一整圈還要經過客廳..?
回覆

使用道具 舉報


發表於 2010-10-3 10:59:10 | 顯示全部樓層
95# cc00992002 沙發方向對調 另一種佈局 儲藏室較理想 可是主臥多了走道浴室好像沒有浴缸 Justin主臥新排列方式有意見嗎?稍作變更再一種排法供參考
BB.png
回覆

使用道具 舉報


發表於 2010-10-3 18:36:55 | 顯示全部樓層
編輯到圖不見了,重貼一次
JustinWang配置.jpg
JustinWang配置2.jpg
回覆

使用道具 舉報


 樓主| 發表於 2010-10-3 20:37:13 | 顯示全部樓層
TO DUSTIN:
浴室如同SAM所言,#93的規劃在視覺及使用上面是比較理想的,感謝DUSTIN為我們這間頭痛的浴室絞盡腦汁

TO cc00992002:
非常感謝您的熱心,空間的規畫上還不錯,餐廳及儲藏室的空間都變大了不少,不過儲藏室是有點過大,廚房使用的時間不多,所以空間上是還OK的,小孩房的床位在窗邊怕會影響到睡眠品質,早上公園的早餐以及刺眼的日光,不曉得是否能有其他的擺設建議參考,主臥浴室的規畫也不錯,但就多了一個走廊,還有開門見廚房的問題,在風水上似乎對夫妻相處上會有較多的爭執
回覆

使用道具 舉報


發表於 2010-10-3 23:30:25 | 顯示全部樓層
星期一要開始忙了!
1.其實一個平面空間,配置可以千變萬化!當然格局的配置,首重空間的完整性(還需遷就考慮後續天花板挑高及大樑位置)!
2.風水是必然考量的重點,要先把比較嚴重的點避開,無法百分之一百考慮到!
JustinWang配置01.jpg

評分

參與人數 1名聲 +10 收起 理由
sam + 10 熱心幫忙,謝謝

查看全部評分

回覆

使用道具 舉報


發表於 2010-10-4 10:47:23 | 顯示全部樓層
101# cc00992002 很棒
越來越接近理想 不知Justin小倆口意見如何 再聚會一次應該有定案
回覆

使用道具 舉報


發表於 2010-10-4 12:23:21 | 顯示全部樓層
個人覺得就新的平面圖來講,主牆面應與小孩房衣櫃外沿沏齊,這樣主臥房間門才不會被切開!其實客廳不算小,可是電視櫃面寬就顯的有一點小家子氣,若有圖檔又不會很急的話.小弟可以出一份平面圖讓你參考! ...
cc00992002 發表於 2010-9-25 18:13

cc00992002兄也是設計師嗎?
感覺挺專業的
真羨慕JustinWang
有這麼多的人協助
讓自己也好想把自宅平面圖PO上請大家建議
回覆

使用道具 舉報

您需要登錄後才可以回文 登入 | 註冊

本版積分規則

熱門推薦

看得見的Hi-End好聲音!全台首例StormAudio風暴EVO/Dali/Burmester/Soulnote共生雙系統!
看得見的Hi-End好聲音!全
看得見的Hi-End好聲音!全台首例StormAudio風暴EVO/Dali/Burmest
床上劇院掰掰~小小獨立視聽室啟用
床上劇院掰掰~小小獨立視
本文章最後由 tom3050 於 2016-3-25 12:06 編輯 2016/3/25更
Storm Audio風暴最新推出8聲道AoIP/XLR數位類比雙生輸入後級擴大機
Storm Audio風暴最新推出8
Storm Audio風暴最新推出8聲道AoIP/XLR數位類比雙生輸入後級擴大
以StormAudio風暴 Elite 32 Digital AoIP打造中國首座AES67/Dante AoIP 架構的全數位 32 聲道家庭劇院
以StormAudio風暴 Elite 3
以StormAudio風暴 Elite 32 Digital AoIP打造中國首座AES67/Dan
這支是史上最美揚聲器?Starke Sound Halo C2 中置揚聲器開箱-Part.1
這支是史上最美揚聲器?St
這支是史上最美揚聲器?Starke Sound Halo C2 中置揚聲器開箱-

聯絡我們| 問題反映| 小黑屋| 手機版| Archiver|  本網站特別聘請 蔡家豪律師 為本站法律顧問

快速回覆 返回頂部 返回列表