查看: 25322|回覆: 26
收起左側

人生首套家庭劇院 空間規劃+過程

[複製連結]

發表於 2013-7-23 23:12:11 | 顯示全部樓層 |閱讀模式

馬上註冊,結交更多好友,享用更多功能,讓你輕鬆玩轉社區。

您需要 登錄 才可以下載或查看,沒有賬號?註冊

x
本身已是精研長期會員,過去總是分享自己拍攝的影片,第一次於劇院版分享文章
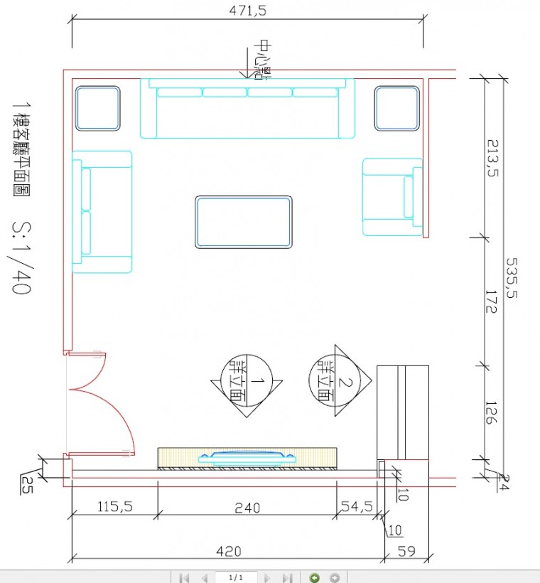
租屋時總是想要一套劇院能好好享受,也因為有了起家厝,夢想得以實現,規劃客廳兼視聽空間予以使用
首先感謝過往前輩文章,讓我對於規劃上更得心應手,劃了草圖、有了想法,再與音響老版溝通,一切得以付諸實現!
01.JPG
客廳空間
02.jpg

03.JPG
主牆我要求簡單俐落,不要擺主機,所以將所有機器整合到旁邊的機櫃
鑲了紫檀木,高度抓與投影布幕放下時不遮住中置喇叭為主
04.JPG
機櫃,雙面可開,正面灰玻、背面百葉格板
05.JPG
預算有限,設備一覽:
EPSON TW5900
135吋億立電動布幕
YAMAHA RX-A1020
華錄N8
主聲道BOSTON CS226
中置BOSTON CS225C
重低音 HDS RS13
外加四顆上方、後環繞崁入型喇叭
06.JPG
07.JPG
08.JPG
09.JPG

小弟以看電影、打電動、聽音樂為主。平常不看電視,有也只看新聞!
10.JPG

11.JPG

12.JPG

13.JPG
用廣角鏡拍攝,人只佔一小角
14.JPG

簡單說明過程:
1.先拉專屬電源供機櫃使用
15.JPG
2.佈線到機櫃
16.JPG
3.所有線源隱藏在牆壁後 (我知道專家會說以後換機器怎麼辦,我覺得美觀蠻重要的,所以務必埋線)
17.JPG
5.對應的孔線先拉好
20.JPG
6.木作完成,等待安裝
19.JPG
7.音響安裝從背面施工,簡單輕鬆
21.JPG
8.機背  散熱效果一定佳!
22.JPG
9.打開供各位前輩鑑定一下有無需要改進之處
23.JPG
10.布幕放下來與喇叭間隔剩不多
24.JPG
11.大門上方原是玻璃會透光,用絨布貼掉
25.JPG
12.因為空間比較空,用羊毛地毯、絨布窗簾增強吸音。不用時升起布幕,乾淨明亮!  報告完畢~
26.JPG


評分

參與人數 1名聲 +20 精幣 +10 收起 理由
Fred + 20 + 10 原創內容

查看全部評分


發表於 2013-7-24 01:27:00 | 顯示全部樓層
主聲道喇叭不要放在布幕後方(除非是透聲幕)
不然會感覺矇住
硬碟抽取盒 比較建議 這種烤麵包機式換成獨立的外接式硬碟盒
我不少朋友 是重度的硬碟使用者 因為繁複拔插 掛了2顆
回覆

使用道具 舉報


發表於 2013-7-24 04:19:12 | 顯示全部樓層
很棒的劇院喔
感謝分享^^
回覆

使用道具 舉報


發表於 2013-7-24 07:04:29 | 顯示全部樓層
很有規劃的劇院...簡約大方 ....線都藏得乾乾淨淨....女主人一定不會罵人~哈哈~
回覆

使用道具 舉報


發表於 2013-7-24 09:18:05 | 顯示全部樓層
您的空間比較像是大樓,搬進來前就先規劃好了,整體空間很棒很乾淨!!

想問一下,牽獨立電源會很麻煩嗎?...大約的花費是多少?

我家也是大樓,搬進來前都沒有考慮到劇院的設計,最後只有把一間4坪左右的房間的裝行拆掉重做成獨立的劇院空間。
回覆

使用道具 舉報


 樓主| 發表於 2013-7-24 17:59:36 | 顯示全部樓層
感謝雷兄指點:
1.因為主牆面寬不足,主升道喇叭上段稍被布幕遮住,音響老闆說可透過音源調整輸出方式解決?
2.目前hd有兩顆,另一顆為外接式硬碟盒,佔不會插拔,不過日後就難講了....烤麵包機現在好像市面買不到了

angi兄:我是透天一樓,客廳兼視聽使用。牽獨立電源不麻煩,水電應該半天就搞定了,好像是$5000~6000

steve兄:重低音表現很棒,不過可能是空間關係,在超重低音表現時,有共鳴產生!
回覆

使用道具 舉報


發表於 2013-7-24 18:16:35 | 顯示全部樓層
簡單大方又有質感和實用性,想必樓主一定費盡千心萬苦的詳細規劃,值得借鏡;感謝分享,我喜歡
回覆

使用道具 舉報


發表於 2013-7-24 18:50:54 | 顯示全部樓層
本文章最後由 小許 於 2013-7-24 18:54 編輯
omgmin 發表於 2013-7-24 17:59
感謝雷兄指點:
1.因為主牆面寬不足,主升道喇叭上段稍被布幕遮住,音響老闆說可透過音源調整輸出方式解決? ...

很精釆的分享!
也恭禧樓主為自已打造了那麼美的視聽空間。
很可惜喇叭擺位全部都靠牆~~中置在和主聲道都在喇叭的後面會造成劇院效果大打折扣。
這位老闆有幫利用音源調整輸出方式解決了嗎?能否與大家分享~
小許對這樣的調整功力相當有興趣。
其實小許建議將主聲道往外拉,重低音拉到層板下。
記得音壓、距離重新調整,效果會比您現在的擺位好非常多!
買個現成的門檔放在喇叭前面,以放防不小心將門開太大力而傷到喇叭。

回覆

使用道具 舉報


 樓主| 發表於 2013-7-25 15:36:07 | 顯示全部樓層
感謝小許兄建議,因為客廳兼視聽空間,多有侷限,魚與熊掌只能求取平衡,把主聲道拉到布幕外有實用性的困難,當時老闆說可以解決,所以我就沒有多加思索,可能本身是初入門,
目前聽不太出來到底影響程度多少。
您說重低音拉到層版下,是指放到什麼地方?
回覆

使用道具 舉報


發表於 2013-7-25 16:58:58 | 顯示全部樓層
omgmin 發表於 2013-7-25 15:36
感謝小許兄建議,因為客廳兼視聽空間,多有侷限,魚與熊掌只能求取平衡,把主聲道拉到布幕外有實用性的困難 ...

有點看錯,不過意思還是差不多。喇叭在布幕後聲音絕對會有差!而且不可能經由調整讓他的聲音與放在布幕前一樣。
您將主聲道(右邊的放在現在低音音的位置,左邊的往門靠。他就不會在布幕後了!而重低音下面很像有一塊低音墊,把它拿掉。放到層板下高度應該OK)
回覆

使用道具 舉報


發表於 2013-7-25 22:00:24 | 顯示全部樓層
omgmin 發表於 2013-7-24 17:59
感謝雷兄指點:
1.因為主牆面寬不足,主升道喇叭上段稍被布幕遮住,音響老闆說可透過音源調整輸出方式解決? ...

調整不是萬能的,高音輸出經過布幕的衰減不可能經過調整就調回來的,這樣的說法實在有點扯。
回覆

使用道具 舉報


發表於 2013-7-26 08:54:41 | 顯示全部樓層
沒批評的意思  
只是剛好大山電纜.....這東東....品質實在...公開我怕會被公幹=.=
只能說在機電 電機業 頗負盛名.....
木造機櫃  對新機器沒問題 往後可能會有過熱.散熱問題
理線能把訊號與電源"走路"分向 訊號會更乾淨一些
回覆

使用道具 舉報


 樓主| 發表於 2013-7-26 13:28:16 | 顯示全部樓層
感謝小許與真平兄淺顯易懂說明喔~
回覆

使用道具 舉報


發表於 2013-7-30 21:56:33 | 顯示全部樓層
真平 發表於 2013-7-25 22:00
調整不是萬能的,高音輸出經過布幕的衰減不可能經過調整就調回來的,這樣的說法實在有點扯。 ...

看這器材應該是網上的店家配的

真的建議主喇叭擺位要再調整
五米觀賞距離配135吋大螢幕
所以面寬稍微不足
起碼看電影時主喇叭要拉出背牆
窗簾遮光要留意

另外電源專線有另外裝專用NFB嗎?
回覆

使用道具 舉報


發表於 2013-7-31 00:19:39 | 顯示全部樓層
cnnd 發表於 2013-7-30 21:56
看這器材應該是網上的店家配的

真的建議主喇叭擺位要再調整

其實要上135吋還要考驗到投影機的強度,

如果等級不夠高硬上135反爾會造成不夠亮而得到反效果。

網兄說到重點!是否有電源專線。

音響環結中往往被人乎視的一環。
回覆

使用道具 舉報


發表於 2013-9-16 20:43:56 | 顯示全部樓層
angichilk 發表於 2013-7-24 09:18
您的空間比較像是大樓,搬進來前就先規劃好了,整體空間很棒很乾淨!!

想問一下,牽獨立電源會很麻煩嗎?... ...

重低音跟我一樣
回覆

使用道具 舉報


發表於 2013-9-24 00:18:19 | 顯示全部樓層
一個夢想的完成對自己來說真的是值得慶祝的事!
回覆

使用道具 舉報


 樓主| 發表於 2013-10-7 17:37:53 | 顯示全部樓層
e996046 發表於 2013-9-24 00:18
一個夢想的完成對自己來說真的是值得慶祝的事!

的確沒錯喔  成就感只有自己能深刻體會
回覆

使用道具 舉報


發表於 2013-10-11 23:44:37 | 顯示全部樓層
客廳桌面建議可以買塊漂亮一點的桌布鋪著,或是剪塊黑絨布,要使用投影機時拿出來鋪上,才不會反光嚴重,對畫質及眼睛觀賞時,舒適度會比較好
回覆

使用道具 舉報


發表於 2013-10-12 02:23:24 | 顯示全部樓層
重低音擺在音響櫃前方,這樣不會重低音喇叭一發聲,玻璃門就開始瘋狂共振嗎?
回覆

使用道具 舉報

您需要登錄後才可以回文 登入 | 註冊

本版積分規則

熱門推薦

看得見的Hi-End好聲音!全台首例StormAudio風暴EVO/Dali/Burmester/Soulnote共生雙系統!
看得見的Hi-End好聲音!全
看得見的Hi-End好聲音!全台首例StormAudio風暴EVO/Dali/Burmest
床上劇院掰掰~小小獨立視聽室啟用
床上劇院掰掰~小小獨立視
本文章最後由 tom3050 於 2016-3-25 12:06 編輯 2016/3/25更
Storm Audio風暴最新推出8聲道AoIP/XLR數位類比雙生輸入後級擴大機
Storm Audio風暴最新推出8
Storm Audio風暴最新推出8聲道AoIP/XLR數位類比雙生輸入後級擴大
以StormAudio風暴 Elite 32 Digital AoIP打造中國首座AES67/Dante AoIP 架構的全數位 32 聲道家庭劇院
以StormAudio風暴 Elite 3
以StormAudio風暴 Elite 32 Digital AoIP打造中國首座AES67/Dan
這支是史上最美揚聲器?Starke Sound Halo C2 中置揚聲器開箱-Part.1
這支是史上最美揚聲器?St
這支是史上最美揚聲器?Starke Sound Halo C2 中置揚聲器開箱-

聯絡我們| 問題反映| 小黑屋| 手機版| Archiver|  本網站特別聘請 蔡家豪律師 為本站法律顧問

快速回覆 返回頂部 返回列表