查看: 26737|回覆: 23
收起左側

預售屋之家庭劇院規劃管線預埋與音響放置問題

[複製連結]

發表於 2019-1-18 21:54:46 | 顯示全部樓層 |閱讀模式

馬上註冊,結交更多好友,享用更多功能,讓你輕鬆玩轉社區。

您需要 登錄 才可以下載或查看,沒有賬號?註冊

x
本帖最後由 love512rx 於 2019-1-18 09:57 PM 編輯

目前在規劃客廳的家庭劇院5.1.2

目前房子是預售屋 還在客變階段

想要請教一些預埋管線,音響放置等問題

有經驗的各位大大能不另色分享教導

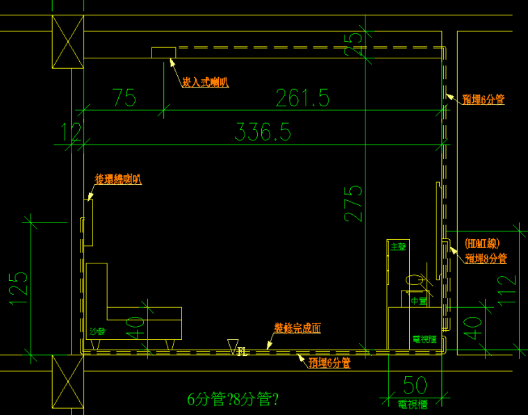
圖面與問題如下

1.關於預埋管線的後環繞,天空聲道,電視機,對應圖中畫的管子大小是否足夠還有預埋的方式是否正確

2.後環繞那面牆為12cm的輕隔間牆也有辦法預埋嗎?

3.天花板的矽酸鈣板建議用多厚的?怕會有共振的問題 要注意哪些問題  
還會有熱交換的管子(只遮25cm可能會不夠)

4.已有先参考過杜比5.1.2的擺放建議來繪製了

後環繞的高度(125cm)與左右位置(103cm), 天空聲道的前後位置(35cm)

這樣的擺放是否需做修正

5.電視櫃的高度與電視機(65吋)放置的高度是否需做修正

6.主聲道與中置與重低音的的擺放放置是否需做修正

7.電源有規畫做獨立迴路專門給音響用了,插座會更換醫療用的插座,想請問排插要使用哪種的比較好,有推薦的嗎

8.後環繞跟天空聲道的線材 有推薦的嗎 有cp值不錯可推薦的嗎?  線長要多抓幾公分呢

謝謝









未命名3.png
未命名2.png
未命名1.png

發表於 2019-1-20 08:37:09 | 顯示全部樓層
本帖最後由 小許 於 2019-1-20 08:39 AM 編輯

喇叭的距離是不是太近了?不到180。可以將超低音與主聲道對調。喇叭放開一點。音場比較寬。
而且配管拉線的部份,如果不嫌麻煩~~可以配硬管。PVC管。但是管要怎麼配怎麼走~又是一門學問了。
建議可以預留投影設備的空間,布幕盒、HDMI配管、投影機吊掛板材的加強。
未來的事情誰都料想不到~
而且喇叭線的配置,如果不能多配一點管,那就多放幾組線~~、共震的問題不是您板材多厚而是工法的問題。
而電視櫃建議不要做了~相辨法如何將線收納好,前面儘量不要做任何櫃子,買現成的音響架都好~有不少賣相十分優質。
大部份沙發的高度約40-45,人眼的高度大約落在100-120之間。所以電視的中心點如果允許的話大約也在這範圍內。
回覆

使用道具 舉報


發表於 2019-1-22 12:26:26 | 顯示全部樓層
1.喇叭線6分管一般已足夠!
2.PVC管一般以  4分 6分 1吋 1吋2 來區分 ,輕隔間預留管路也可以!
3.正常矽酸鈣天花板施作,是以兩分厚為主,壁面才會用三分厚!
4.建議在右側做專用機櫃,這樣將來擴充性才夠,電視牆面擺起來才會好看!
回覆

使用道具 舉報


發表於 2019-1-22 18:17:33 | 顯示全部樓層
喇叭線的管是否夠還是要看你要用的等級,也可用WireWorld扁平線。
回覆

使用道具 舉報


 樓主| 發表於 2019-1-23 22:57:32 | 顯示全部樓層
小許 發表於 2019-1-20 08:37 AM
喇叭的距離是不是太近了?不到180。可以將超低音與主聲道對調。喇叭放開一點。音場比較寬。
而且配管拉線的 ...

感謝  以重新在規劃了
回覆

使用道具 舉報


發表於 2020-1-23 23:11:14 | 顯示全部樓層
cc00992002 發表於 2019-1-22 12:26 PM
1.喇叭線6分管一般已足夠!
2.PVC管一般以  4分 6分 1吋 1吋2 來區分 ,輕隔間預留管路也可以!
3.正常矽酸鈣 ...

留6分實在有一點小~~

而機櫃的部份,我個人規劃經驗當中。
我不會這麼建議,因為會壓縮的喇叭的擺位。
而且在初期的規劃,我會試著先說服對方先把投影機以及布幕考量下去。
現在不想要不代表未來不想要~所以任何的想法都要把5年10年後的狀況假設進去。
回覆

使用道具 舉報


 樓主| 發表於 2020-1-24 11:31:54 | 顯示全部樓層
當初也是有想過把投影機以及布幕考量下去  不過電視牆面總寬只有279公分

喇叭會沒位置放
或如果布幕放下時喇叭會被擋到 音質會被影響 請問有無解決辦法
感謝

回覆

使用道具 舉報


發表於 2020-1-27 20:48:18 | 顯示全部樓層
本文最後由 cc00992002 於 2020-1-27 08:50 PM 編輯
love512rx 發表於 2020-1-24 11:31 AM
當初也是有想過把投影機以及布幕考量下去  不過電視牆面總寬只有279公分

喇叭會沒位置放

時間過真快,轉眼一年又過去!
的確這空間布幕大約只能放到92吋(含黑邊應該需要220公分)上下,100吋擠不下!大尺寸的電視價格又不停地往下盪,92吋真的有點不上不下!

我不知道你右邊櫃子的用途?若是我,我會把櫃子一部份改成機櫃,重低音移到右側275cm外,這樣正面的空間就會拉出來,也好規劃!


回覆

使用道具 舉報


發表於 2020-1-27 22:18:47 | 顯示全部樓層
你的圖面只看得到客廳這一塊,但是大約猜一下~前面不會是動線。如果追求更好的音場。喇叭萬不得以之下應該不會靠牆。如果不會靠牆的話~~喇叭往前拉一點點。電視離布幕盒開孔抓10CM。其實是做100是沒什麼問題。但是你要先考量一下動線。還有女主人的意見~不然就是用最近流行的超短焦~直接用超短焦打100吋。代替電視~。但是用這個就要考量中央聲道的放置。100吋白色的部份125X222。如果喇叭有往前拉一點點~其實不用多。10-20C都可以。你的喇叭是不太會被擋到。而且空間很夠用。但是還要再考量布幕的地方就是上黑邊~~
回覆

使用道具 舉報


 樓主| 發表於 2020-1-28 12:23:16 | 顯示全部樓層
本文最後由 love512rx 於 2020-1-28 12:26 PM 編輯

很快過一年了雖然房子還再建
但是我的樓層客變部份已完成了

有為音響留獨立迴路,插座,網路,電視線,預留後環繞線孔等
如下方照片
考慮到空間大小等因素 目前規劃為5.1.2 以壁掛式喇叭為主

擺設位置有參考Dolby Atmos 擺設建議
喇叭也有把目前想要的廠商畫入
繪製圖面如下
有些問題想請教

不知各位有無推薦的壁掛式喇叭
最好能試聽的
還有一個問題是不知天空聲道位置目前的85公分正不正確
謝謝

獨立迴路,插座,網路,後環繞線出線孔
IMG_1414_調整大小.JPG

重低音(左)與電視(右)用插座
IMG_1392_調整大小.JPG

預留後環繞線孔
IMG_1416_調整大小.JPG

預留後環繞線孔尺寸
IMG_1458_調整大小.JPG



圖面點入會放大
未命名.png

未命名2.png

回覆

使用道具 舉報


發表於 2020-2-3 13:41:38 | 顯示全部樓層
最喜歡看過程了。
我這篇你也可以參考看看。
https://www.hd.club.tw/thread-221587-1-1.html
回覆

使用道具 舉報


 樓主| 發表於 2020-2-4 22:37:52 | 顯示全部樓層
west 發表於 2020-2-3 01:41 PM
最喜歡看過程了。
我這篇你也可以參考看看。
https://www.hd.club.tw/thread-221587-1-1.html

west大 您那篇太專業了
回覆

使用道具 舉報


 樓主| 發表於 2020-2-4 22:59:14 | 顯示全部樓層
新進度

前幾天去工地看  隔間牆預埋後環繞線管 快完成了

隔間牆預埋管後環繞線管

隔間牆預埋管後環繞線管



回覆

使用道具 舉報


發表於 2020-3-5 12:49:48 | 顯示全部樓層
請問現在電視櫃已經拿掉了嗎?那器材規劃要放那裡?
回覆

使用道具 舉報


 樓主| 發表於 2020-3-6 20:01:49 | 顯示全部樓層
JAMIE_HW 發表於 2020-3-5 12:49 PM
請問現在電視櫃已經拿掉了嗎?那器材規劃要放那裡?

已移到右手邊的置物櫃裡了
回覆

使用道具 舉報


發表於 2020-3-29 18:33:39 | 顯示全部樓層
提示: 作者被禁止或刪除 內容自動屏蔽
回覆

使用道具 舉報


發表於 2020-7-15 06:34:05 | 顯示全部樓層
算時間應該要完成了才對?美圖照~~敲碗
回覆

使用道具 舉報


 樓主| 發表於 2020-7-16 23:21:38 | 顯示全部樓層
小許 發表於 2020-7-15 06:34 AM
算時間應該要完成了才對?美圖照~~敲碗

還沒  目前進度如下
交屋要明年

還有一段時間可以做功課
IMG_4679_調整大小.JPG


回覆

使用道具 舉報


發表於 2020-7-18 09:44:31 | 顯示全部樓層
love512rx 發表於 2020-7-16 11:21 PM
還沒  目前進度如下
交屋要明年

那時間還很多~~加油!期待你完成
回覆

使用道具 舉報


發表於 2020-8-4 13:41:44 | 顯示全部樓層
本文最後由 jplin 於 2020-8-4 01:55 PM 編輯

既然有客變

當初應該全戶討論
現在看起來就是有聲音而已(不好意思 直說給以後的人參考)
或許已經是最佳方案了

我是看配置的 器材絕對不是全部


要說除了房子變得非常貴以外
三十年來格局也沒甚麼改善 想要有好的視聽環境真的不容易
回覆

使用道具 舉報

您需要登錄後才可以回文 登入 | 註冊

本版積分規則

熱門推薦

床上劇院掰掰~小小獨立視聽室啟用
床上劇院掰掰~小小獨立視
本文章最後由 tom3050 於 2016-3-25 12:06 編輯 2016/3/25更
Storm Audio風暴最新推出8聲道AoIP/XLR數位類比雙生輸入後級擴大機
Storm Audio風暴最新推出8
Storm Audio風暴最新推出8聲道AoIP/XLR數位類比雙生輸入後級擴大
以StormAudio風暴 Elite 32 Digital AoIP打造中國首座AES67/Dante AoIP 架構的全數位 32 聲道家庭劇院
以StormAudio風暴 Elite 3
以StormAudio風暴 Elite 32 Digital AoIP打造中國首座AES67/Dan
這支是史上最美揚聲器?Starke Sound Halo C2 中置揚聲器開箱-Part.1
這支是史上最美揚聲器?St
這支是史上最美揚聲器?Starke Sound Halo C2 中置揚聲器開箱-
25年專業劇院路終遇驚喜美麗新天地 - 新店李師傅Storm Audio風暴Core16客廳5.4.6開箱!
25年專業劇院路終遇驚喜美
25年專業劇院路終遇驚喜美麗新天地 - 新店李師傅Storm Audio風暴

聯絡我們| 問題反映| 小黑屋| 手機版| Archiver|  本網站特別聘請 蔡家豪律師 為本站法律顧問

快速回覆 返回頂部 返回列表